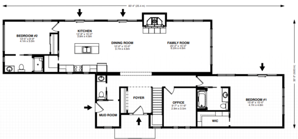
Description
The Q-M1 is a modern home in the truest sense of the word. Both clean and spacious, it delivers open communication, comforting line of sight and efficient use of it’s space. The Q-M1’s floor to ceiling windows provide ample opportunity to engage the space outside your home as well as in. Live the way you want, in comfort, style and security in our higher than industry standards and materials. The Q-M1, connecting you to the people who matter most.
Rooms & Dimensions
1,862 sq.ft.
3 beds
2.5 baths
1 floors























Reviews
There are no reviews yet.