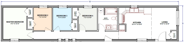
Smart Modular Canada | Commodore
Models and prices displayed on PLACE are subject to change at the discretion of the Villager Pro.
You must be logged in to post a review.
Loading...
Vendor Information
- Store Name: Smart Modular Canada
- Vendor: Smart Modular Canada
-
Address:
24 Haniak Rd
Rosslyn ON P7K 0C8
Canada - No ratings found yet!














Reviews
There are no reviews yet.